Dieses MFH in Limburg ist eine interessante Gelegenheit für Kapitalanleger, die auf der Suche nach einem soliden Anlageobjekt mit Ertragspotential sind.
Das Haus befindet sich auf einem ca. 578 m² großen Grundstück, hat insgesamt ca. 286 m² Wohnfläche und ca. 75 m² Nutzfläche.
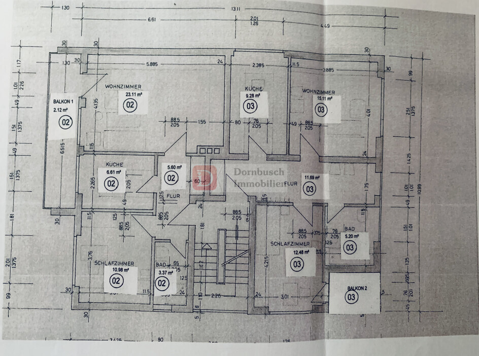
Im Haus befinden sich 5 Wohneinheiten verteilt auf drei Etagen:
Erdgeschoss:
1 × 4-Zimmer-Wohnung, ca. 107 m², mit 2 Balkonen, Badezimmer und Gäste-WC
Obergeschoss:
1 × 2-Zimmer-Wohnung, ca. 52 m², mit Balkon
1 × 2-Zimmer-Wohnung, ca. 55 m², mit Balkon
Dachgeschoss:
1 × 1-Zimmer-Wohnung, ca. 36 m²
1 × 2-Zimmer-Wohnung, ca. 36 m²
Das Haus ist voll unterkellert, hat 5 separate Kellerabteile, eine gemeinschaftliche Waschküche, einen Trockenraum und den Heizraum.
Zur Immobilie gehören darüber hinaus 2 Garagen (je ca. 14,75 m²) sowie 3 Außenstellplätze direkt vor dem Haus.
Alle Wohnungen sind sofort beziehbar.
Durch die solide Bauweise und die interessante Aufteilung eröffnet dieses Mehrfamilienhaus Investoren die Möglichkeit langfristig attraktive Erträge zu sichern.
Technische Angaben
- ImmoNr
- 262134
Kategorie
- Objektart
- Haus
- Objekttyp
- Mehrfamilienhaus
- Nutzungsart
- Wohnen
- Vermarktungsart
- Kauf
Preise
- Kaufpreis
- 725.000,00 €
- Außen-Provision
- 3,57% vom Kaufpreis inkl. MwSt.
Geografische Angaben
- PLZ
- 65549
- Ort
- Limburg
Flächen
- Wohnfläche
- ca. 285 m²
- Nutzfläche
- ca. 75 m²
- Anzahl Zimmer
- 11
- Anzahl Badezimmer
- 6
- Anzahl Wohneinheiten
- 5
- Anzahl Balkone
- 4
Ausstattung
Balkon
- Befeuerung
- Gas
- Boden
- Laminat, Fliesen
- Etagenzahl
- 3
- Stellplätze
- 4 Freiplätze, 2 Garagen, 10.000 € (Kauf)
Beschreibung
Ausstattung
• 5 Wohneinheiten insgesamt
• Wohnfläche gesamt: ca. 286 m²
• Nutzfläche: ca. 75 m²
• Grundstücksgröße: ca. 578 m²
• Vollunterkellert mit 5 separaten Kellerabteilen sowie gemeinsamer Waschküche und Trockenraum
• 4 Balkone
• 2 Garagen (je 14,75m²)
• 4 Außenstellplätze vor dem Haus
Wohnungsaufteilung
• Erdgeschoss:
1 × 4-Zimmer-Wohnung, ca. 107 m²
mit 2 Balkonen, Badezimmer, Gäste-WC
• Obergeschoss:
1 × 2-Zimmer-Wohnung, ca. 52 m², mit Balkon
1 × 2-Zimmer-Wohnung, ca. 55 m², mit Balkon
• Dachgeschoss:
1 × 1-Zimmer-Wohnung, ca. 36 m²
1 × 2-Zimmer-Wohnung, ca. 36 m²
• Wohnfläche gesamt: ca. 286 m²
• Nutzfläche: ca. 75 m²
• Grundstücksgröße: ca. 578 m²
• Vollunterkellert mit 5 separaten Kellerabteilen sowie gemeinsamer Waschküche und Trockenraum
• 4 Balkone
• 2 Garagen (je 14,75m²)
• 4 Außenstellplätze vor dem Haus
Wohnungsaufteilung
• Erdgeschoss:
1 × 4-Zimmer-Wohnung, ca. 107 m²
mit 2 Balkonen, Badezimmer, Gäste-WC
• Obergeschoss:
1 × 2-Zimmer-Wohnung, ca. 52 m², mit Balkon
1 × 2-Zimmer-Wohnung, ca. 55 m², mit Balkon
• Dachgeschoss:
1 × 1-Zimmer-Wohnung, ca. 36 m²
1 × 2-Zimmer-Wohnung, ca. 36 m²
Lage
• In nur ca. 5 Minuten erreichen Sie die Auffahrt Limburg-Süd zur A3 (ca. 2,5 km entfernt)
• Bushaltestelle in ca. 2 Minuten fußläufig erreichbar, mit schnellen Verbindungen zum Limburger Busbahnhof sowie in umliegende Gemeinden und nach Wiesbaden Hbf
• Einkaufsmöglichkeiten wie Mix-Markt oder EDEKA sind in unmittelbarer Nähe zu erreichen.
• ICE-Bahnhof Limburg Süd (ca. 30 Min. nach Frankfurt) und Regionalbahnhof Limburg mit Anbindungen Richtung Wiesbaden, Gießen und Koblenz
Die Immobilie befindet sich in einer Lage, die eine perfekte Kombination aus urbaner Erreichbarkeit und naturnahem Wohnen bietet.
Die nächste Bushaltestelle befindet sich nur zwei Gehminuten entfernt. Von hier aus gelangen Sie schnell zum zentralen Busbahnhof in Limburg. Zudem gibt es direkte Busverbindungen in die umliegenden Gemeinden wie Hünfelden-Ohren sowie eine schnelle Anbindung bis nach Wiesbaden Hauptbahnhof.
Für Autofahrer bietet die Lage einen besonderen Vorteil: Die Auffahrt Limburg-Süd zur Autobahn A3 ist nur etwa 2,5 km entfernt und in rund fünf Minuten bequem erreichbar.
Der ICE-Bahnhof Limburg-Süd ist in wenigen Minuten mit dem Auto erreichbar und bietet eine schnelle Direktverbindung nach Frankfurt, die rund 30 Minuten dauert. Auch mit öffentlichen Verkehrsmitteln besteht eine gute Anbindung.
Die Nahversorgung ist optimal gewährleistet: Direkt vor der Haustür befindet sich ein Mix-Markt. Darüber hinaus befindet sich ein EDEKA-Markt in fußläufiger Entfernung. Ergänzt wird dieses Angebot durch die nahe gelegene Zeppelin-Apotheke sowie weitere Einrichtungen der Nahversorgung wie Eiscafés und ein Friseur.
Kulturelle Highlights wie der Limburger Dom, die historische Altstadt mit ihren liebevoll restaurierten Fachwerkhäusern sowie die historische Lahnbrücke prägen das Bild der Stadt. Zahlreiche Boutiquen, Cafés und Restaurants laden zudem zum Verweilen ein.
Darüber hinaus überzeugt die Umgebung durch vielfältige Möglichkeiten zur Freizeitgestaltung. Spaziergänge oder Radtouren entlang der Lahn, Kanufahrten oder Ausflüge auf dem beliebten Lahnwanderweg bieten naturnahe Erholung.
Damit bietet die Immobilie den perfekten Rahmen für Menschen, die sowohl die Nähe zur Stadt als auch die Vorzüge einer naturnahen Umgebung schätzen.
• Bushaltestelle in ca. 2 Minuten fußläufig erreichbar, mit schnellen Verbindungen zum Limburger Busbahnhof sowie in umliegende Gemeinden und nach Wiesbaden Hbf
• Einkaufsmöglichkeiten wie Mix-Markt oder EDEKA sind in unmittelbarer Nähe zu erreichen.
• ICE-Bahnhof Limburg Süd (ca. 30 Min. nach Frankfurt) und Regionalbahnhof Limburg mit Anbindungen Richtung Wiesbaden, Gießen und Koblenz
Die Immobilie befindet sich in einer Lage, die eine perfekte Kombination aus urbaner Erreichbarkeit und naturnahem Wohnen bietet.
Die nächste Bushaltestelle befindet sich nur zwei Gehminuten entfernt. Von hier aus gelangen Sie schnell zum zentralen Busbahnhof in Limburg. Zudem gibt es direkte Busverbindungen in die umliegenden Gemeinden wie Hünfelden-Ohren sowie eine schnelle Anbindung bis nach Wiesbaden Hauptbahnhof.
Für Autofahrer bietet die Lage einen besonderen Vorteil: Die Auffahrt Limburg-Süd zur Autobahn A3 ist nur etwa 2,5 km entfernt und in rund fünf Minuten bequem erreichbar.
Der ICE-Bahnhof Limburg-Süd ist in wenigen Minuten mit dem Auto erreichbar und bietet eine schnelle Direktverbindung nach Frankfurt, die rund 30 Minuten dauert. Auch mit öffentlichen Verkehrsmitteln besteht eine gute Anbindung.
Die Nahversorgung ist optimal gewährleistet: Direkt vor der Haustür befindet sich ein Mix-Markt. Darüber hinaus befindet sich ein EDEKA-Markt in fußläufiger Entfernung. Ergänzt wird dieses Angebot durch die nahe gelegene Zeppelin-Apotheke sowie weitere Einrichtungen der Nahversorgung wie Eiscafés und ein Friseur.
Kulturelle Highlights wie der Limburger Dom, die historische Altstadt mit ihren liebevoll restaurierten Fachwerkhäusern sowie die historische Lahnbrücke prägen das Bild der Stadt. Zahlreiche Boutiquen, Cafés und Restaurants laden zudem zum Verweilen ein.
Darüber hinaus überzeugt die Umgebung durch vielfältige Möglichkeiten zur Freizeitgestaltung. Spaziergänge oder Radtouren entlang der Lahn, Kanufahrten oder Ausflüge auf dem beliebten Lahnwanderweg bieten naturnahe Erholung.
Damit bietet die Immobilie den perfekten Rahmen für Menschen, die sowohl die Nähe zur Stadt als auch die Vorzüge einer naturnahen Umgebung schätzen.
Sonstige Angaben
Der Maklervertrag zwischen dem Kunden und uns kommt entweder durch schriftliche Vereinbarung oder auch durch die Inanspruchnahme unserer Maklertätigkeit in Kenntnis und auf der Basis des Ihnen vorliegenden Objekt-Exposés und seiner Bedingungen oder von uns erteilter Auskünfte zustande.
Die Käufer-Provision beträgt 3,57% vom Kaufpreis inkl. MwSt. Die Käufer-Provision ist verdient und fällig mit notarieller Beurkundung. Der Immobilienmakler hat einen provisionspflichtigen Maklervertrag in gleicher Höhe mit dem Verkäufer abgeschlossen.
Bitte beachten Sie, dass alle Angaben ohne Gewähr sind und ausschließlich auf Informationen basieren, die uns von unserem Auftraggeber übermittelt wurden. Wir übernehmen keine Haftung für die Vollständigkeit, Richtigkeit und Aktualität dieser Angaben.
Möchten Sie den Wert Ihrer Immobilie erfahren?
Wir bieten Ihnen eine kostenlose und unverbindliche Bewertung Ihrer Immobilie an.
Die Käufer-Provision beträgt 3,57% vom Kaufpreis inkl. MwSt. Die Käufer-Provision ist verdient und fällig mit notarieller Beurkundung. Der Immobilienmakler hat einen provisionspflichtigen Maklervertrag in gleicher Höhe mit dem Verkäufer abgeschlossen.
Bitte beachten Sie, dass alle Angaben ohne Gewähr sind und ausschließlich auf Informationen basieren, die uns von unserem Auftraggeber übermittelt wurden. Wir übernehmen keine Haftung für die Vollständigkeit, Richtigkeit und Aktualität dieser Angaben.
Möchten Sie den Wert Ihrer Immobilie erfahren?
Wir bieten Ihnen eine kostenlose und unverbindliche Bewertung Ihrer Immobilie an.
Energieausweis
A+
< 30
A
30 - 50
B
50 - 75
C
75 - 100
D
100 - 130
E
130 - 160
F
160 - 200
G
200 - 250
H
> 250
- Baujahr
- 1979
- Endenergieverbrauch
- 112 kWh/(m²a)
- Energieausweis
- Verbrauchsausweis
- Energieausweis gültig bis
- 01.01.2027
- Energieeffizienzklasse
- D
- wesentlicher Energieträger
- Erdgas leicht
Ihr Ansprechpartner
Herr Serdar Yildirim
Dornbusch Immobilien
- Tel.:
- 069 91314151
- E-Mail:
- mail@dornbusch-immobilien.de
Eschersheimer Landstraße 230
60320 Frankfurt