Mehr anzeigen zum Thema Beschreibung
Beschreibung
Erbpacht auf einen Blick
• Laufzeit des Erbbaurechts: bis zum 31.12.2088
• Jährlicher Erbbauzins: 1.541,00 €
• Monatliche Belastung: ca. 128,42 €
Zahlweise: Vierteljährlich (jeweils zum 30.03., 30.06., 30.09. und 30.12.)
Dieses gepflegte Reihenmittelhaus aus dem Jahr 1949 vereint klassischen Charme, durchdachte Raumstruktur und einen liebevoll angelegten Garten, ideal für Familien oder Gartenliebhaber, die ein Zuhause mit Charakter und Naturanschluss suchen.
Es erstreckt sich über drei Wohnetagen und verfügt zusätzlich über ein großzügiges Kellergeschoss mit direktem Zugang zum Garten.
Im Erdgeschoss führt ein heller Flur sowohl in die Küche als auch in den offen gestalteten Wohnbereich. Die Küche ist funktional geschnitten und bietet über einen seitlichen Zugang die Verbindung zur Kellertreppe.
Das Wohnzimmer bildet das Herzstück des Hauses: Zwei bodentiefe Terrassentüren lassen sich komplett zur Seite schieben und schaffen einen fließenden Übergang auf die sonnige Terrasse und in den Garten. Elektrische Rollläden sorgen für Komfort und Sichtschutz.
Ergänzt wird das Erdgeschoss durch ein separates WC mit abgehängter Decke und integrierten Spotlights, klassisch und zeitlos gestaltet.
Im ersten Obergeschoss befinden sich zwei gut geschnittene Zimmer, die sich flexibel als Schlafzimmer, Kinder- oder Arbeitszimmer nutzen lassen.
Ergänzt wird die Etage durch ein Tageslichtbad im Stil der 80er Jahre, ausgestattet mit Doppelwaschbecken, Badewanne und praktischem Stauraum.
Im ausgebauten Dachgeschoss stehen zwei weitere Zimmer sowie ein separates WC zur Verfügung, besonders praktisch für Familienangehörige, die im Dachgeschoss übernachten.
Der Garten ist ein echtes Highlight: Apfel- und Sauerkirschbaum, Weinreben sowie Kräuter wie Minze, Salbei und Rosmarin schaffen ein mediterranes Flair.
Eine von Reben bewachsene Pergola mit angrenzendem Gartenhäuschen überdacht die gemütliche Terrasse. Ideal für entspannte Stunden im Freien, zum Gärtnern oder für gesellige Abende mit Familie und Freunden.
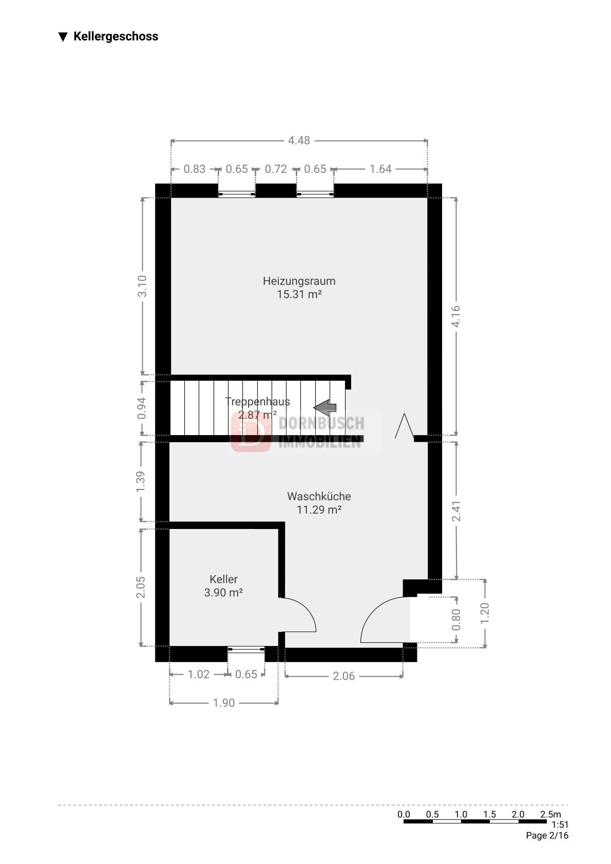
Im Keller befinden sich ein Heizungsraum (Anlage erneuert 2019), ein separater Wäscheraum sowie ein weiterer Raum, der flexibel als Lager oder Werkstatt genutzt werden kann. Der direkte Ausgang in den Garten ist ein praktischer Pluspunkt.
Ein gepflegter Vorgarten mit Platz für Fahrräder und Mülltonnen rundet das Angebot ab.
Ein Zuhause mit Charakter, Gartenfreude und solider Substanz.
• Laufzeit des Erbbaurechts: bis zum 31.12.2088
• Jährlicher Erbbauzins: 1.541,00 €
• Monatliche Belastung: ca. 128,42 €
Zahlweise: Vierteljährlich (jeweils zum 30.03., 30.06., 30.09. und 30.12.)
Dieses gepflegte Reihenmittelhaus aus dem Jahr 1949 vereint klassischen Charme, durchdachte Raumstruktur und einen liebevoll angelegten Garten, ideal für Familien oder Gartenliebhaber, die ein Zuhause mit Charakter und Naturanschluss suchen.
Es erstreckt sich über drei Wohnetagen und verfügt zusätzlich über ein großzügiges Kellergeschoss mit direktem Zugang zum Garten.
Im Erdgeschoss führt ein heller Flur sowohl in die Küche als auch in den offen gestalteten Wohnbereich. Die Küche ist funktional geschnitten und bietet über einen seitlichen Zugang die Verbindung zur Kellertreppe.
Das Wohnzimmer bildet das Herzstück des Hauses: Zwei bodentiefe Terrassentüren lassen sich komplett zur Seite schieben und schaffen einen fließenden Übergang auf die sonnige Terrasse und in den Garten. Elektrische Rollläden sorgen für Komfort und Sichtschutz.
Ergänzt wird das Erdgeschoss durch ein separates WC mit abgehängter Decke und integrierten Spotlights, klassisch und zeitlos gestaltet.
Im ersten Obergeschoss befinden sich zwei gut geschnittene Zimmer, die sich flexibel als Schlafzimmer, Kinder- oder Arbeitszimmer nutzen lassen.
Ergänzt wird die Etage durch ein Tageslichtbad im Stil der 80er Jahre, ausgestattet mit Doppelwaschbecken, Badewanne und praktischem Stauraum.
Im ausgebauten Dachgeschoss stehen zwei weitere Zimmer sowie ein separates WC zur Verfügung, besonders praktisch für Familienangehörige, die im Dachgeschoss übernachten.
Der Garten ist ein echtes Highlight: Apfel- und Sauerkirschbaum, Weinreben sowie Kräuter wie Minze, Salbei und Rosmarin schaffen ein mediterranes Flair.
Eine von Reben bewachsene Pergola mit angrenzendem Gartenhäuschen überdacht die gemütliche Terrasse. Ideal für entspannte Stunden im Freien, zum Gärtnern oder für gesellige Abende mit Familie und Freunden.
Im Keller befinden sich ein Heizungsraum (Anlage erneuert 2019), ein separater Wäscheraum sowie ein weiterer Raum, der flexibel als Lager oder Werkstatt genutzt werden kann. Der direkte Ausgang in den Garten ist ein praktischer Pluspunkt.
Ein gepflegter Vorgarten mit Platz für Fahrräder und Mülltonnen rundet das Angebot ab.
Ein Zuhause mit Charakter, Gartenfreude und solider Substanz.
Mehr anzeigen zum Thema Ausstattung
Ausstattung
Erbpacht auf einen Blick
• Laufzeit des Erbbaurechts: bis zum 31.12.2088
• Jährlicher Erbbauzins: 1.541,00 €
• Monatliche Belastung: ca. 128,42 €
Zahlweise: Vierteljährlich (jeweils zum 30.03., 30.06., 30.09. und 30.12.)
• Reihenmittelhaus mit 3 Wohnetagen
• Fünf Zimmer mit flexibler Nutzung (z. B. Schlafen, Kind, Arbeiten)
• Offener Wohnbereich mit Schiebetüren zur Terrasse
• Elektrische Rollläden im Wohnzimmer
• Rollläden in allen Zimmern
• Einbauküche mit Elektrogeräten
• Parkettboden
• Zwei WCs – im Erdgeschoss mit abgehängter Decke und Spotlights, zusätzlich im Dachgeschoss
• Tageslichtbad mit Doppelwaschbecken und Badewanne
• Helle Küche mit Zugang zur Kellertreppe
• Keller mit Heizungsraum (Anlage von 2019), Wäscheraum und Werkstatt/Lager
• Direkter Zugang vom Keller in den Garten
• Sonnige Terrasse
• Zweite Terrasse unter bewachsener Pergola mit Weinreben
• Gartenhäuschen als Stauraum oder Rückzugsort
• Mediterraner Garten mit Apfelbaum, Sauerkirsche und Kräutern
• Vorgarten mit Abstellmöglichkeit für Fahrräder und Mülltonnen
• Laufzeit des Erbbaurechts: bis zum 31.12.2088
• Jährlicher Erbbauzins: 1.541,00 €
• Monatliche Belastung: ca. 128,42 €
Zahlweise: Vierteljährlich (jeweils zum 30.03., 30.06., 30.09. und 30.12.)
• Reihenmittelhaus mit 3 Wohnetagen
• Fünf Zimmer mit flexibler Nutzung (z. B. Schlafen, Kind, Arbeiten)
• Offener Wohnbereich mit Schiebetüren zur Terrasse
• Elektrische Rollläden im Wohnzimmer
• Rollläden in allen Zimmern
• Einbauküche mit Elektrogeräten
• Parkettboden
• Zwei WCs – im Erdgeschoss mit abgehängter Decke und Spotlights, zusätzlich im Dachgeschoss
• Tageslichtbad mit Doppelwaschbecken und Badewanne
• Helle Küche mit Zugang zur Kellertreppe
• Keller mit Heizungsraum (Anlage von 2019), Wäscheraum und Werkstatt/Lager
• Direkter Zugang vom Keller in den Garten
• Sonnige Terrasse
• Zweite Terrasse unter bewachsener Pergola mit Weinreben
• Gartenhäuschen als Stauraum oder Rückzugsort
• Mediterraner Garten mit Apfelbaum, Sauerkirsche und Kräutern
• Vorgarten mit Abstellmöglichkeit für Fahrräder und Mülltonnen
Mehr anzeigen zum Thema Lage
Lage
• Straßenbahnhaltestelle „Mönchhofstraße“ (Linie 11, 21): ca. 3 Gehminuten
• Bushaltestelle „Mönchhofstraße“ (Linie M34, N11): ca. 2 Gehminuten
• S-Bahn-Station „Galluswarte“ (Linien S3, S4, S5, S6): ca. 5 Minuten mit dem Fahrrad
• Autobahnanschluss A5 / A648: ca. 3 Autominuten (1 km)
• Flughafen Frankfurt: ca. 15 Minuten mit dem Auto
• Skyline Plaza (Shopping & Wellness): ca. 7 Minuten mit dem Fahrrad
• Rebstock Park (Grün- & Freizeitfläche): ca. 5 Minuten mit dem Auto
Im Herzen des aufstrebenden Gallusviertels vereint diese Lage urbanes Leben mit exzellenter Infrastruktur.
Die Nähe zur Innenstadt – nur etwa 4,7 km entfernt – macht das Quartier besonders attraktiv für Berufstätige, die zentrumsnah wohnen und dennoch schnell an ihr Ziel gelangen möchten.
Die Anbindung an den öffentlichen Nahverkehr ist hervorragend: In nur wenigen Gehminuten erreichst du die Straßenbahnhaltestelle „Mönchhofstraße“ (Linien 11 und 21), die direkte Verbindungen in die City und zum Hauptbahnhof bietet.
Die S-Bahn-Station „Galluswarte“ (Linien S3 bis S6) ist ebenfalls bequem erreichbar und bringt dich schnell zum Flughafen oder in die Städte der Rhein-Main-Region.
Auch mit dem Auto ist man bestens angebunden. Die nächstgelegene Auffahrt zur A5/A648 liegt nur rund einen Kilometer entfernt und ermöglicht eine zügige Fahrt ins Umland, zur Messe oder in benachbarte Städte wie Wiesbaden oder Darmstadt.
Trotz der zentralen Lage punktet das Viertel mit grünen Rückzugsorten. Der Rebstock Park lädt mit seinen Wiesen, Wegen und Sportflächen zur Erholung im Freien ein – ideal für Spaziergänge, Familienausflüge oder sportliche Aktivitäten.
Nur wenige Minuten entfernt befindet sich das bekannte Skyline Plaza – ein modernes Einkaufs- und Erlebniszentrum mit über 170 Geschäften, vielfältiger Gastronomie und dem exklusiven „Meridian Spa“. Ergänzt wird das Angebot durch das benachbarte Europaviertel mit internationalem Flair.
Im direkten Umfeld findest du zahlreiche Einkaufsmöglichkeiten für den täglichen Bedarf:
Supermärkte, Bäckereien, Apotheken sowie charmante Cafés und kleinere Läden – alles bequem zu Fuß erreichbar. Familien profitieren zudem von der Nähe zu Kindertagesstätten, Grundschulen und weiterführenden Bildungseinrichtungen.
• Bushaltestelle „Mönchhofstraße“ (Linie M34, N11): ca. 2 Gehminuten
• S-Bahn-Station „Galluswarte“ (Linien S3, S4, S5, S6): ca. 5 Minuten mit dem Fahrrad
• Autobahnanschluss A5 / A648: ca. 3 Autominuten (1 km)
• Flughafen Frankfurt: ca. 15 Minuten mit dem Auto
• Skyline Plaza (Shopping & Wellness): ca. 7 Minuten mit dem Fahrrad
• Rebstock Park (Grün- & Freizeitfläche): ca. 5 Minuten mit dem Auto
Im Herzen des aufstrebenden Gallusviertels vereint diese Lage urbanes Leben mit exzellenter Infrastruktur.
Die Nähe zur Innenstadt – nur etwa 4,7 km entfernt – macht das Quartier besonders attraktiv für Berufstätige, die zentrumsnah wohnen und dennoch schnell an ihr Ziel gelangen möchten.
Die Anbindung an den öffentlichen Nahverkehr ist hervorragend: In nur wenigen Gehminuten erreichst du die Straßenbahnhaltestelle „Mönchhofstraße“ (Linien 11 und 21), die direkte Verbindungen in die City und zum Hauptbahnhof bietet.
Die S-Bahn-Station „Galluswarte“ (Linien S3 bis S6) ist ebenfalls bequem erreichbar und bringt dich schnell zum Flughafen oder in die Städte der Rhein-Main-Region.
Auch mit dem Auto ist man bestens angebunden. Die nächstgelegene Auffahrt zur A5/A648 liegt nur rund einen Kilometer entfernt und ermöglicht eine zügige Fahrt ins Umland, zur Messe oder in benachbarte Städte wie Wiesbaden oder Darmstadt.
Trotz der zentralen Lage punktet das Viertel mit grünen Rückzugsorten. Der Rebstock Park lädt mit seinen Wiesen, Wegen und Sportflächen zur Erholung im Freien ein – ideal für Spaziergänge, Familienausflüge oder sportliche Aktivitäten.
Nur wenige Minuten entfernt befindet sich das bekannte Skyline Plaza – ein modernes Einkaufs- und Erlebniszentrum mit über 170 Geschäften, vielfältiger Gastronomie und dem exklusiven „Meridian Spa“. Ergänzt wird das Angebot durch das benachbarte Europaviertel mit internationalem Flair.
Im direkten Umfeld findest du zahlreiche Einkaufsmöglichkeiten für den täglichen Bedarf:
Supermärkte, Bäckereien, Apotheken sowie charmante Cafés und kleinere Läden – alles bequem zu Fuß erreichbar. Familien profitieren zudem von der Nähe zu Kindertagesstätten, Grundschulen und weiterführenden Bildungseinrichtungen.
Mehr anzeigen zum Thema Sonstige Angaben
Sonstige Angaben
Der Maklervertrag zwischen dem Kunden und uns kommt entweder durch schriftliche Vereinbarung oder auch durch die Inanspruchnahme unserer Maklertätigkeit in Kenntnis und auf der Basis des Ihnen vorliegenden Objekt-Exposés und seiner Bedingungen oder von uns erteilter Auskünfte zustande.
Die Käufer-Provision beträgt 3,57% vom Kaufpreis inkl. MwSt. Die Käufer-Provision ist verdient und fällig mit notarieller Beurkundung. Der Immobilienmakler hat einen provisionspflichtigen Maklervertrag in gleicher Höhe mit dem Verkäufer abgeschlossen.
Bitte beachten Sie, dass alle Angaben ohne Gewähr sind und ausschließlich auf Informationen basieren, die uns von unserem Auftraggeber übermittelt wurden. Wir übernehmen keine Haftung für die Vollständigkeit, Richtigkeit und Aktualität dieser Angaben.
Möchten Sie den Wert Ihrer Immobilie erfahren?
Wir bieten Ihnen eine kostenlose und unverbindliche Bewertung Ihrer Immobilie an.
Die Käufer-Provision beträgt 3,57% vom Kaufpreis inkl. MwSt. Die Käufer-Provision ist verdient und fällig mit notarieller Beurkundung. Der Immobilienmakler hat einen provisionspflichtigen Maklervertrag in gleicher Höhe mit dem Verkäufer abgeschlossen.
Bitte beachten Sie, dass alle Angaben ohne Gewähr sind und ausschließlich auf Informationen basieren, die uns von unserem Auftraggeber übermittelt wurden. Wir übernehmen keine Haftung für die Vollständigkeit, Richtigkeit und Aktualität dieser Angaben.
Möchten Sie den Wert Ihrer Immobilie erfahren?
Wir bieten Ihnen eine kostenlose und unverbindliche Bewertung Ihrer Immobilie an.
Mehr anzeigen zum Thema Sonstige Angaben
Energieausweis
A+
< 30
A
30 - 50
B
50 - 75
C
75 - 100
D
100 - 130
E
130 - 160
F
160 - 200
G
200 - 250
H
> 250
- Nutzungsart
- Wohnen
- Endenergieverbrauch
- 407,7 kWh/(m²a)
- Energieausweis
- Verbrauchsausweis
- Energieausweis gültig bis
- 07.04.2035
- Energieeffizienzklasse
- H
- wesentlicher Energieträger
- Gas
Ihr Ansprechpartner
Herr Serdar Yildirim
Dornbusch Immobilien
- Tel.:
- 069 91314151
- E-Mail:
- mail@dornbusch-immobilien.de
Eschersheimer Landstraße 230
60320 Frankfurt